5700 Sq.ft G+2 Residential Building

MR.SABARI RESIDENCE

Residential Project

Ameritore Infrastructure proudly presents a meticulously designed G+2 residential building, spanning 5,700 sq. ft. Located in Peelamedu, Tamil Nadu, this project blends modern architecture with functionality to create a comfortable living space. With a focus on quality and precision, the residence offers durable construction and thoughtfully planned interiors, ensuring a harmonious living experience for its occupants.

  • Residential Building
  • Peelamedu, Tamilnadu
  • 5700 Sq.ft
  • Full Civil, Architecture, Interior Design
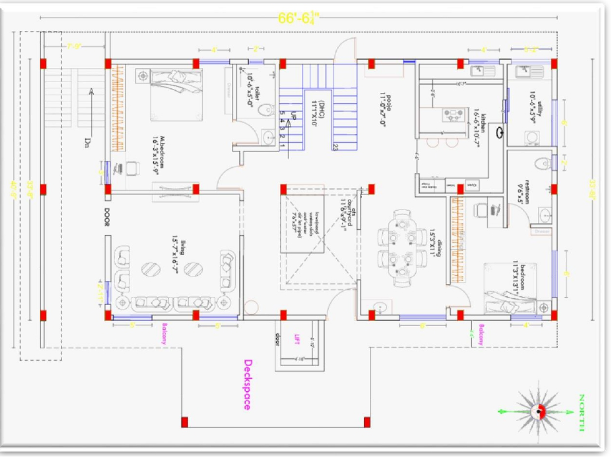
FIRST FLOOR LAYOUT
SECOND FLOOR LAYOUT
SITE STATUS
(+612) 2531 5600 info@example.com PO Box 1622 Colins Street West Victoria 8077 Australia