3,500 Sq.ft (Civil + PEB) Residential Building

SHYAM CONTROLS Residential Building

Renovation & Elevation Project

We are excited to present the renovation of the SHYAM CONTROLS Residential Building in RS Puram, spanning 3,500 sq. ft. with a combination of civil and PEB (Pre-Engineered Building) construction. This project focuses on enhancing the existing structure by integrating modern design elements and improving functionality, all while preserving the building's original charm. It showcases our dedication to quality, efficient space utilization, and thoughtful renovation strategies.

  • SHYAM CONTROLS Residential Building
  • RS Puram,Coimbatore
  • 3,500 Sq.ft
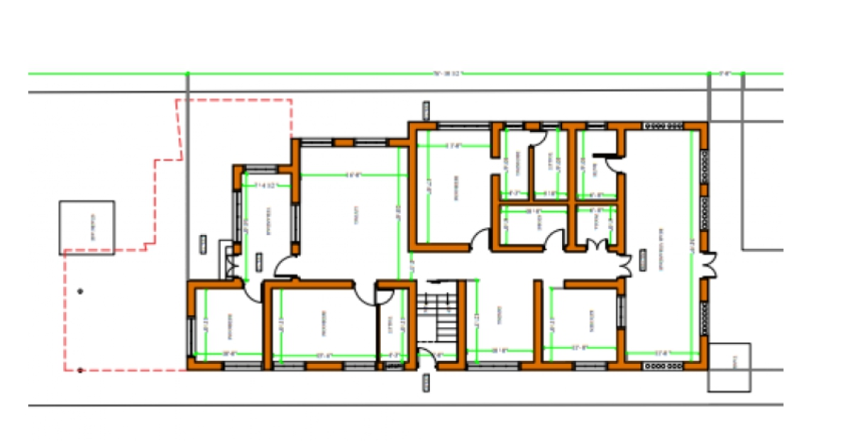
FLOOR LAYOUT
SITE STATUS
(+612) 2531 5600 info@example.com PO Box 1622 Colins Street West Victoria 8077 Australia