5,548 Sq.ft (Full Civil) G+3 Commercial Cafe Building

MR.CHERALATHAN Commercial Building

Commercial Project

Ameritore Infra successfully completed a G+3 commercial café building in Race Course, covering 5,548 sq. ft. This project highlights our ability to create versatile commercial spaces that combine aesthetic appeal with practicality. Designed to offer an inviting and functional environment, the building adheres to the highest standards of quality and craftsmanship.

  • Commercial Cafe Building - Race Course
  • Tamilnadu
  • 5,548 Sq.ft
  • Full Civil
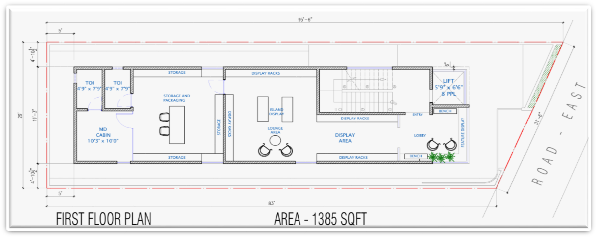
FLOOR LAYOUTS
FLOOR LAYOUTS
SITE STATUS
(+612) 2531 5600 info@example.com PO Box 1622 Colins Street West Victoria 8077 Australia